Artículo
Proyecto BSL-3+ México: lecciones tras una década
Resumen:
Diseñar y construir un laboratorio de alta contención nunca es fácil, especialmente cuando está ubicado en el cuarto piso de un hospital de tercer nivel en una zona sísmica. En 2015, la Secretaría de Marina (SEMAR) inició el proyecto del primer laboratorio BSL-3+ en México, con una cabina de bioseguridad Clase III y un sistema para el tratamiento de efluentes. Tras años de ajustes técnicos, cambios de contratistas y complicaciones logísticas, el laboratorio se concluyó y entró en operación en 2024.
Este texto resume cómo se desarrolló el proyecto, desde decisiones clave en el diseño y cambios en los materiales, hasta las lecciones que dejó el proceso. Entre los puntos más importantes: involucrar al personal científico desde el inicio, asegurar la continuidad del equipo técnico y planear desde el principio los costos y necesidades de operación a largo plazo.
Hoy el laboratorio está certificado y funcionando. Sus sistemas de calidad y bioseguridad cumplen con las normas nacionales e internacionales, como ISO 35001, NMX-EC-15189 y NMX-EC-17025. Está diseñado para apoyar el diagnóstico y la investigación de enfermedades infecciosas de alto riesgo, como la tuberculosis multirresistente y el SARS-CoV-2.
Más allá de lo técnico, este proyecto mostró que la paciencia, la persistencia y la capacidad de adaptarse son igual de importantes que la ingeniería para sacar adelante un laboratorio de este tipo.
Introducción
Diseñar y construir un laboratorio de alta contención nunca es sencillo, especialmente cuando está ubicado en el cuarto piso de un hospital de tercer nivel en una zona sísmica. En 2015, la Secretaria de Marina de México (SEMAR) comenzó a planificar lo que eventualmente se convertiría en el único laboratorio BSL3+ en México con un gabinete de bioseguridad Clase III y un sistema de descontaminación de efluentes. El proyecto fue ambicioso desde el principio y acabaría tardando casi una década en completarse por la complejidad implícita.
Este artículo recorre el historial del laboratorio del Centro Médico Naval (CEMENAV): cómo se diseñó, se construyó, se retrasó, se reestructuró, se comisionó y finalmente se puso en operación. Analiza las lecciones institucionales aprendidas a lo largo del proyecto. La intención no es presentar un modelo perfecto, sino compartir las realidades de la construcción de una instalación compleja bajo las limitaciones del mundo real, desde la construcción y el comisionamiento hasta la capacitación del personal y la certificación.
CEMENAV
El diseño de un laboratorio BSL3 es complejo y requiere construcción, equipos y protocolos especializados para garantizar la seguridad y el cumplimiento de las normativas de bioseguridad y biocustodia. Implica la creación de un entorno controlado con flujo de aire direccional autocontenido, control de acceso y procedimientos de descontaminación para minimizar el riesgo de transmisión de enfermedades infecciosas. Esta complejidad se deriva de la necesidad de equilibrar la seguridad con la eficiencia operativa y las necesidades de investigación.
El desarrollo de un proyecto como este de principio a fin suele durar entre dos y tres años, pero, debido a los muchos retos a los que se enfrentó el proyecto, el diseño iniciado en 2015 no estaría finalizado hasta 2024. Algunos de estos desafíos incluyeron:
A pesar de estos desafíos, el proyecto logró completarse en 2024, gracias al compromiso y la perseverancia de las partes interesadas.
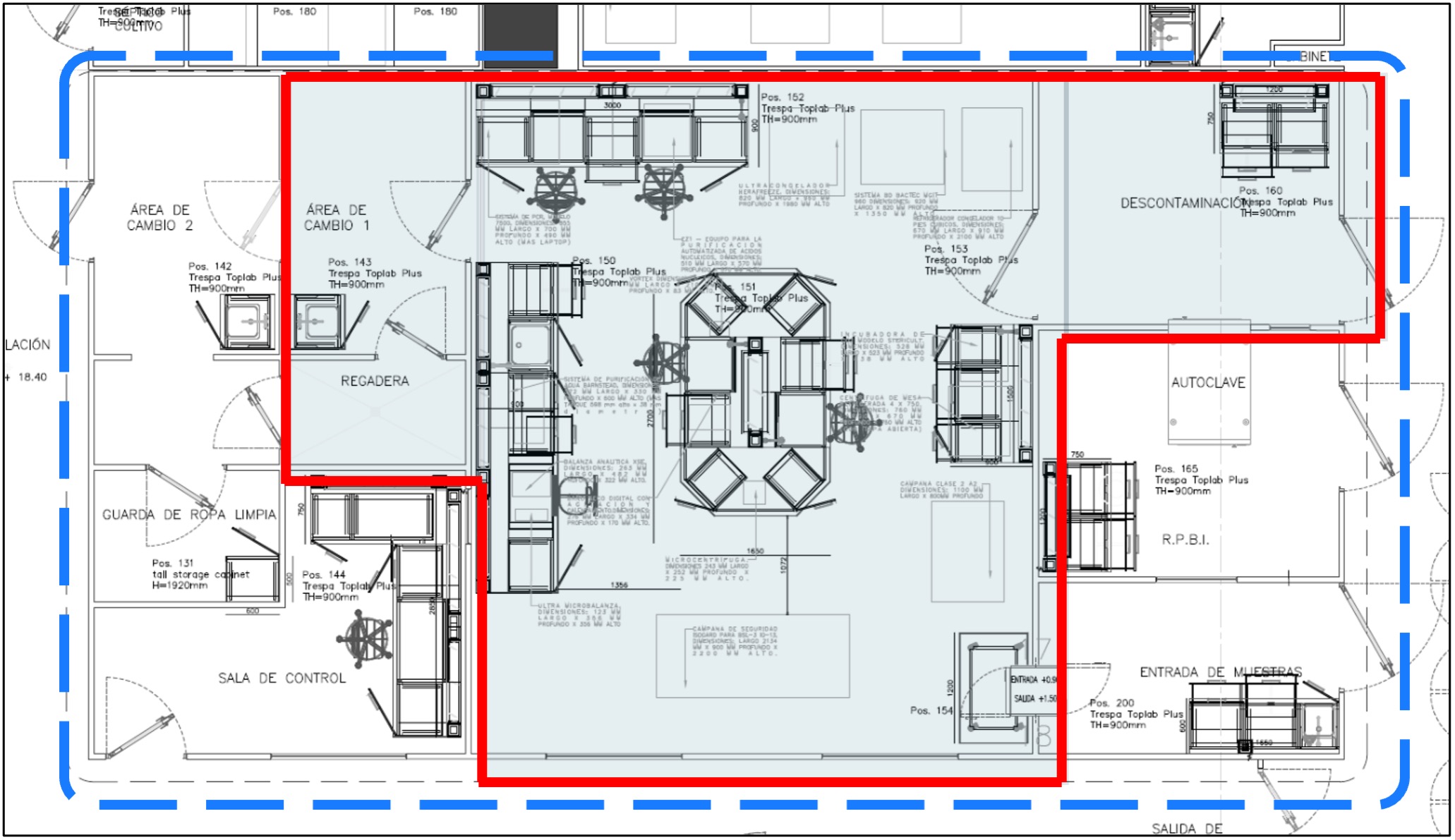
El laboratorio es el único “mejorado” o “plus” en México que incluye una cabina de bioseguridad Clase III y un sistema de descontaminación de efluentes (EDS). El área del laboratorio BSL3 es de aproximadamente 100 m2 e incluye un área de cambio limpio, ducha de paso, cambio sucio, sala de laboratorio principal y una esclusa de descontaminación.
El laboratorio BSL3+ cuenta con el apoyo de las áreas BSL2 para permitir un programa científico que incluye citometría, microbiología molecular, secuenciación, histocompatibilidad, unidades de terapia clínica y de investigación, microscopia, secuenciación de nueva generación, y el trabajo con tuberculosis resistente a medicamentos y otras enfermedades emergentes o reemergentes como el SARS, el MERS y la gripe aviar.
Uno de los retos más importantes de este proyecto fue su ubicación en el cuarto piso de un nuevo hospital; dada la frecuente actividad sísmica en la Ciudad de México y los estrictos requisitos de la barrera de contención, la selección de una metodología de construcción y materiales requirió una investigación considerable.
Existen una serie de métodos utilizados tradicionalmente en la construcción de barreras secundarias y primarias para instalaciones de contención. Las placas tabla roca o cemento, los bloques de hormigón (CMU), los paneles de acero inoxidable, los paneles de polímero reforzado con fibra de vidrio (FRP) y el hormigón armado especial se encuentran comúnmente en los laboratorios con las designaciones BSL3, BSL3Ag y BSL4. Sin embargo, ninguno de estos métodos era adecuado para la construcción del laboratorio BSL3+ del CEMENAV. A pesar de que varios laboratorios BSL3 en la Ciudad de México se han construido con hormigón armado (InDRE e IPN, por ejemplo), no era una opción para este proyecto debido al peso del concreto sobre la estructura existente, que había sido diseñada para soportar solo una construcción de paneles farmacéuticos más livianos.
El diseño original especificaba el uso de un método de construcción de marco de montantes de acero ligero y la instalación de un sistema de paneles de polímero reforzado con fibra de vidrio (FRP), dada su resistencia sísmica comprobada en laboratorios BSL3 en California y Nueva Zelanda. Como indica el cronograma de la Figura 1, en 2017 se contrató a un nuevo contratista para completar la construcción de los laboratorios BSL2 y 3+. Dicho contratista decidió abandonar la metodología de construcción del diseño original y optó por la instalación de un panel farmacéutico de acabado fenólico para el laboratorio BSL3+. En respuesta a este cambio, a través de un esfuerzo colaborativo entre personal de la SEMAR y los equipos de diseño y comisionamiento, se solicitó al contratista la elaboración de una maqueta del piso-paredes-techo del panel propuesto para ser sometida a una prueba sísmica en el departamento de Ingeniería Civil del IPN. El método sugerido no cumplió con los criterios técnicos requeridos, lo que llevó al equipo a ajustar la estrategia constructiva.
Finalmente, tras la conclusión de la pandemia por SARS-CoV-2 a mediados de 2023, la SEMAR reactivó la fase final del proyecto con un contratista especializado para concluir la construcción del laboratorio, así como con un nuevo equipo de comisionamiento encargado de definir los requisitos de prueba y supervisar las pruebas prefuncionales, de desempeño y de sistemas integrados.
En 2023, se comenzó el diseño e implementación un sistema de gestión integral trinorma para realizar todos los procesos y procedimientos de laboratorio con el fin de conseguir el máximo nivel de precisión, fiabilidad de los resultados y mantener la bioseguridad-biocustodia de las muestras a procesar y salvaguardar la salud de los colaboradores.
Un sistema integral fue desarrollado de acuerdo con las siguientes normas: NMX-EC-15189-IMNC-2015: Laboratorios clínicos: requisitos de calidad y competencia, NMX-EC-17025-IMNC-2018: Laboratorios clínicos: requisitos de calidad y competencia‚ y ISO 35001:2019: Manejo de riesgos biológicos en laboratorios y otras organizaciones relacionadas.
El laboratorio se completó con éxito en el primer trimestre de 2024, cuando se aprobaron todas las pruebas de comisionamiento y el personal técnico recibió capacitación formal en normatividad aplicable, bioseguridad, biocustodia, operación y mantenimiento.
Lecciones Aprendidas: Perspectivas de un Usuario de Laboratorio
Tras la conclusión del proyecto, se realizó una reflexión sobre los factores que influyeron en la duración del proceso y sobre las oportunidades de mejora identificadas. De esta revisión surgieron observaciones que pueden contribuir al desarrollo de mejores prácticas para proyectos similares en el futuro.
La participación temprana de las partes interesadas en el proceso de diseño resulta fundamental. Involucrar desde el inicio al personal científico y operativo en la definición de requerimientos técnicos favorece la eficiencia del diseño y la pertinencia de las soluciones implementadas.
También es esencial establecer una estrategia que garantice la continuidad técnica del proyecto. Contar con mecanismos que preserven los planes, metodologías y criterios de diseño frente a posibles cambios de personal o contratistas asegura coherencia y estabilidad a lo largo de todas las fases de desarrollo.
Definir con claridad el programa científico desde las primeras etapas contribuye a orientar adecuadamente las decisiones de diseño. En proyectos de larga duración, los ajustes de equipo o prioridades pueden dificultar la consolidación de un programa técnico, por lo que es recomendable documentar y validar sus objetivos desde el inicio.
La experiencia especializada es un factor determinante para el éxito. Contar con personal, contratistas y equipos de operación familiarizados con las particularidades de los laboratorios BSL-3 reduce la necesidad de ajustes posteriores y optimiza los tiempos de ejecución.
Los clientes deben ser muy conscientes de los costos asociados con la operación y el mantenimiento de un laboratorio BSL3, que pueden ser significativamente más altos que los de un BSL2, para que se puedan tomar las decisiones adecuadas durante la fase de planificación.
Es importante fortalecer y sensibilizar al personal de laboratorio sobre las buenas prácticas de seguridad. La capacitación y el desarrollo de un manual de bioseguridad y POE deben planificarse y presupuestar desde el inicio del proyecto, en lugar de introducir costos inesperados al final.
Todavía queda mucho por hacer a la hora de desarrollar este tipo de proyectos para garantizar que incluyan métodos de adquisición adecuados, experiencia y una consideración de todo el ciclo de vida de la instalación, desde la planificación, el diseño y la construcción hasta el comisionamiento, la aceptación final y las operaciones de mantenimiento.
CONCLUSIÓN:
Mirando hacia atrás, el proyecto BSL-3+ de la Secretaría de Marina representó un proceso de evolución técnica y organizativa impulsado por las personas y los procesos tanto como por la construcción y el cumplimiento normativo. Es fácil subestimar el impacto acumulativo de los ajustes de diseño, la rotación de personal, los cambios de prioridad y las presiones externas, especialmente en un proyecto que se desarrolló a lo largo de casi una década. Sin embargo, estos son los desafíos que ponen a prueba y fortalecen la capacidad de gestión de proyectos de contención en entornos reales.
Las principales lecciones aprendidas refuerzan la importancia de la planificación integral y la participación temprana. Involucrar al personal científico desde las primeras etapas contribuye a optimizar los procesos y evitar retrabajos. Mantener la continuidad entre los equipos contratistas y planificar desde el inicio los costos operativos futuros permite reducir desviaciones. Finalmente, integrar la capacitación en bioseguridad desde las fases iniciales sienta una base sólida para una operación segura y sostenible.
Aun así, el resultado final es algo de lo que estamos orgullosos: una instalación BSL3+ totalmente funcional, alineada con Normatividad Nacional e Internacional vigente, con la capacidad de apoyar el trabajo de enfermedades infecciosas de alta consecuencia en México. El camino fue más largo de lo esperado, y a menudo más complicado, pero el laboratorio ahora se erige como un recurso nacional único. Para otros que planean instalaciones similares, la verdadera conclusión no es solo técnica. Es saber que el éxito depende de la paciencia, la persistencia y la voluntad de adaptarse a lo largo del camino.

