Proyecto de referencia

Vista exterior del laboratorio BSL-3 de SAG Chile

Un referente nacional de diseño basado en riesgo y adaptado al contexto local

El desarrollo del Laboratorio BSL-3 del Servicio Agrícola y Ganadero (SAG) de Chile Lo Aguirre brindó a BioLab Solutions la oportunidad de aplicar su filosofía central: que una infraestructura de bioseguridad efectiva en América Latina debe construirse sobre conocimiento local, diseño basado en riesgo y una responsabilidad que abarque todo el ciclo de vida.

Trabajando en estrecha colaboración con el SAG, BioLab lideró un enfoque que priorizó el riesgo medible, la capacidad constructiva local y la operatividad a largo plazo por encima de modelos importados. Cada decisión de diseño se evaluó a la luz de cuatro principios rectores:

Ciclo de Vida para un laboratorio de alta contención
  • Diseño basado en riesgo: arquitectura e ingeniería guiadas por evaluaciones cuantitativas del riesgo.
  • Tecnología apropiada: sistemas de contención que cumplen con normas internacionales y pueden mantenerse con experiencia y cadenas de suministro locales.
  • Desarrollo de capacidades locales: participación activa de especialistas del SAG en todas las etapas de diseño y validación.
  • Integración del ciclo de vida: equilibrio entre desempeño, costo, mantenimiento y sostenibilidad desde el concepto hasta la operación.

Gracias a esta colaboración, el proyecto se convirtió en una demostración nacional de cómo Chile puede planificar, ejecutar y sostener laboratorios de contención avanzada bajo sus propios términos. También refleja la misión más amplia de BioLab: transformar el diseño técnico en una capacidad institucional duradera.

Laboratorio BSL-3 SAG Chile crossection

Resiliencia institucional y soberanía científica

El proyecto SAG – Lo Aguirre BSL-3 representa un paso decisivo en el fortalecimiento de la capacidad pública de Chile para proteger y mejorar la condición fito y zoosanitaria de los recursos productivos, así como conservar los recursos naturales renovables del sector forestal y agropecuario del país. Esto se logra mediante el control de insumos y productos, y la elaboración, actualización y aplicación de la normativa vigente para personas y entidades vinculadas al Servicio, contribuyendo al desarrollo sostenible y competitivo con enfoque de género a través de la ciencia.

El proyecto integra política, infraestructura y conocimiento especializado en un sistema nacional único, diseñado para la autosuficiencia a largo plazo. Al desarrollar una instalación de alta contención dentro de la red del SAG, el Estado garantiza que el trabajo diagnóstico y de vigilancia de patógenos de alto riesgo pueda realizarse completamente bajo supervisión nacional, sin depender de laboratorios externos ni de validaciones extranjeras.

En conjunto con el SAG, BioLab Solutions tradujo estos objetivos de política en un marco técnico que unifica las funciones regulatorias, diagnósticas y de bioseguridad. El proyecto consolida el papel del SAG como autoridad tanto reguladora como técnica. El laboratorio respalda un conjunto completo de funciones diagnósticas —virología, bacteriología, parasitología y patología— integrándose directamente en el sistema de gestión de calidad acreditado bajo la norma ISO 17025. Esta estructura garantiza que los resultados analíticos sean científicamente confiables, trazables y defendibles ante las normas internacionales de comercio y sanidad.

La resiliencia institucional se alcanza mediante la estandarización y la coordinación. El diseño, la documentación y los procedimientos operativos desarrollados para SAG – Lo Aguirre constituyen un modelo replicable para la red ampliada de laboratorios SAG en todo Chile. Protocolos compartidos para la recepción de muestras, la verificación de contención, la gestión de bioseguridad y la respuesta ante emergencias generan coherencia y reducen vulnerabilidades. Con la orientación de BioLab, este trabajo técnico se transformó también en un proceso de reforma organizacional, fortaleciendo los sistemas de datos, las estructuras de reporte y las herramientas de gestión que respaldarán futuras modernizaciones.

La inversión refuerza la capacidad de Chile para gestionar emergencias. Con la posibilidad de realizar pruebas rápidas y confirmar enfermedades animales o zoonóticas como influenza aviar, brucelosis o fiebre aftosa, el SAG adquiere la agilidad necesaria para la detección temprana, el control y la notificación internacional. Esta autonomía tiene implicaciones directas para la continuidad del comercio y la confianza pública. En síntesis, SAG – Lo Aguirre demuestra cómo la infraestructura puede funcionar como una herramienta de política pública, integrando la competencia científica dentro del Estado.

Integración de diseño: arquitectura, riesgo y desempeño

El laboratorio BSL-3 SAG – Lo Aguirre fue diseñado mediante un proceso integrado que vincula arquitectura, ingeniería, bioseguridad y operaciones. En lugar de desarrollar estas áreas por separado, el equipo las trabajó en paralelo para que cada decisión pudiera evaluarse según su impacto en la seguridad, la funcionalidad y el desempeño a largo plazo. Esta integración garantiza que la instalación final no solo cumpla con la normativa, sino que también sea eficiente, mantenible y verificable con el tiempo.

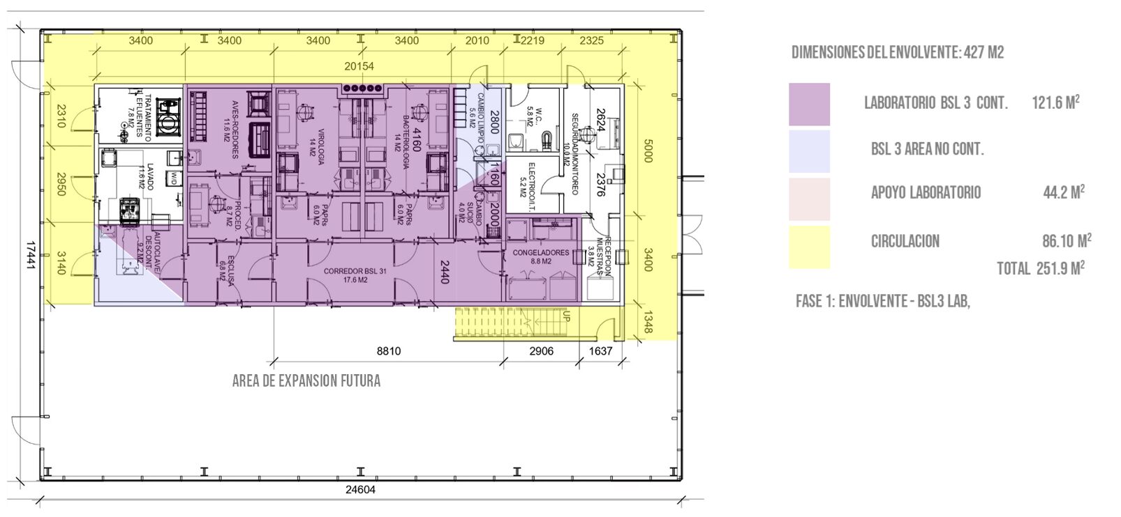
Siguiendo la metodología de diseño basado en riesgo de BioLab, la organización espacial responde a la lógica de la contención. Los laboratorios, esclusas y áreas de apoyo se disponen de modo que se preserve el flujo de aire direccional y la separación física entre zonas limpias y contaminadas. Los diferenciales de presión entre salas —que varían aproximadamente de –12.5 Pa a –37.5 Pa— se mantienen mediante sistemas de ventilación redundantes y monitoreo continuo.
Ciclo de Vida para un laboratorio de alta contención

El personal, los materiales y los residuos siguen rutas unidireccionales definidas, con esclusas de doble puerta, autoclaves de paso y equipos de descontaminación. Estas trayectorias se mapearon en talleres colaborativos que permitieron a los usuarios confirmar que la circulación planificada respaldaba flujos de trabajo seguros y prácticos. (AXO flujo direccional)

La evaluación cuantitativa de riesgos desarrollada por el SAG con apoyo de BioLab constituye la base de las decisiones de diseño. Las calificaciones de probabilidad y severidad de cada actividad determinan las medidas de contención requeridas, la redundancia de los equipos y las salvaguardas operativas. Este enfoque convierte el análisis de riesgo en una herramienta de control de diseño, vinculando directamente los resultados de seguridad con las decisiones espaciales y mecánicas.

Los sistemas técnicos se configuraron para garantizar confiabilidad y mantenibilidad. Las unidades de manejo de aire incluyen redundancia N+1 y filtración HEPA con carcasas accesibles para pruebas y reemplazos in situ. Los sistemas eléctricos proporcionan alimentación ininterrumpida a las cargas críticas, mientras que los sistemas de gestión del edificio registran datos ambientales para verificación continua.

La atención a los factores humanos complementa estas medidas técnicas. El diseño maximiza el acceso a la luz natural sin generar carga térmica adicional, facilita control visual claro, circulación lógica y espacio de trabajo suficiente para reducir la fatiga del operador. Los niveles de iluminación, el control de ruido y la disposición ergonómica del equipo contribuyen tanto a la seguridad como a la eficiencia. En conjunto, estas características reflejan el compromiso de BioLab con el desempeño a lo largo del ciclo de vida: un laboratorio seguro de construir, eficiente de operar y sencillo de mantener.

 

Ciclo de Vida para un laboratorio de alta contención
Ciclo de Vida para un laboratorio de alta contención
Ciclo de Vida para un laboratorio de alta contención

Modularidad, adaptabilidad y contexto local

El laboratorio SAG – Lo Aguirre adopta un enfoque modular que combina flexibilidad, constructibilidad y resiliencia. Cada sala se basa en un módulo estándar de 3.40 × 8.40 m, lo que permite dimensiones repetitivas para la estructura, los sistemas mecánicos y los acabados interiores. Esta cuadrícula modular reduce la complejidad del diseño y simplifica la adquisición, la construcción y las futuras modificaciones, principios fundamentales en el modelo de tecnología apropiada de BioLab.

Paneles prefabricados y sellados en fábrica de Arcoplast conforman las superficies interiores de la zona de contención. Estos paneles no porosos y resistentes a productos químicos ofrecen un acabado liso y hermético que puede limpiarse y reemplazarse sin afectar las áreas adyacentes. Sus conexiones se fusionan térmicamente, eliminando la necesidad de soldadura en sitio, lo que mejora el control de calidad y permite una instalación rápida. El mismo sistema se ha utilizado con éxito en otras instalaciones BSL-3 de la región, aportando al proyecto una base tecnológica comprobada y adaptable localmente.
La estructura de acero del edificio y su envolvente aislada fueron diseñadas para las condiciones sísmicas y climáticas de Chile. Los sistemas estructurales cumplen con las normas NCh 433 y 2369, garantizando que la instalación pueda resistir eventos sísmicos mayores sin pérdida de contención. El aislamiento térmico y las barreras de vapor responden al clima mediterráneo de la zona central, limitando las fluctuaciones de temperatura y la infiltración de humedad. Estas decisiones de diseño reducen la carga mecánica y prolongan la vida útil tanto de la estructura como de sus sistemas.
 
La modularidad también permite una implementación por etapas. Los componentes pueden adquirirse e instalarse conforme se disponga del financiamiento, y la instalación puede ampliarse mediante módulos adicionales o configuraciones espejo sin rediseñar los sistemas centrales. Esto hace que el proyecto sea financieramente manejable y deja abierta la posibilidad de crecimiento futuro.
 
Ciclo de Vida para un laboratorio de alta contención
Ciclo de Vida para un laboratorio de alta contención

A escala de red, el concepto modular crea un estándar nacional reproducible. Al utilizar dimensiones, materiales y detalles de interfaz consistentes, el SAG puede replicar unidades de laboratorio en otras regiones, manteniendo un desempeño uniforme y simplificando la capacitación, el mantenimiento y la certificación. Para BioLab, esta escalabilidad representa una forma de fortalecimiento local: un modelo estandarizado pero adaptable que permite a Chile ampliar su infraestructura de bioseguridad de manera sostenible e independiente.

La sostenibilidad como estrategia operativa

La sostenibilidad en el proyecto SAG – Lo Aguirre se aborda como un requisito técnico y operativo, directamente vinculado con la seguridad, la confiabilidad y el control de costos. El diseño integra la eficiencia energética, hídrica y de materiales desde las primeras etapas de planificación, apoyando las políticas nacionales de energía y cambio climático de Chile sin comprometer el desempeño de contención.

En coherencia con la filosofía de BioLab basada en el ciclo de vida, la eficiencia energética comienza con la envolvente del edificio. Paneles aislantes de alto rendimiento y juntas herméticas minimizan las pérdidas de calor y la infiltración. La fachada norte incorpora vidrio fotovoltaico (BIPV), mientras que las fachadas este y oeste integran paneles solares a modo de parasoles, complementados con paneles fotovoltaicos en la cubierta orientados según la geometría solar local. Se estima que estos sistemas generarán alrededor de 139 MWh de energía renovable al año, superando el consumo modelado de 128 MWh, lo que hace técnicamente viable una operación con balance energético positivo.

El diseño mecánico y eléctrico refuerza este enfoque. Los sistemas HVAC electrificados emplean variadores de frecuencia y ventilación controlada por demanda por medio de válvulas de control de aire para ajustar los recambios de aire por hora según la ocupación, manteniendo los diferenciales de presión. En cuanto a la recuperación de calor, no se contemplan ruedas entálpicas (ERV) debido al riesgo de contaminación cruzada en laboratorios BSL-3; en su lugar, se considera el uso de circuitos cerrados de bobinas (agua/glicol) o tubos de calor remotos (solo sensibles). La iluminación LED con sensores de luz natural reduce la carga eléctrica. La automatización del edificio registra el desempeño de manera continua, proporcionando datos para la optimización y el cumplimiento de la norma ISO 50001 de gestión energética.

La gestión del agua es igualmente prioritaria dada la sequía persistente en la región. Todos los efluentes de las áreas de contención pasan por un sistema dedicado de descontaminación, garantizando la seguridad biológica antes del vertido. Debido a la naturaleza de alta contención del laboratorio, las aguas grises de duchas y lavabos no se reutilizan; en su lugar, los sistemas de captación pluvial proveen un suministro no potable para limpieza y riego. Los procesos de autoclave y esterilización se optimizan para reducir tanto el consumo de agua como el de energía por ciclo.

La selección de materiales privilegia la durabilidad, las bajas emisiones y la reducción del carbono incorporado. El uso de acero reciclado, selladores no tóxicos y recubrimientos de bajas emisiones de compuestos orgánicos volátiles (VOC) favorece condiciones interiores saludables y una larga vida útil. La construcción y la operación siguen los principios de la Certificación Edificio Sustentable (CES) y de LEED Zero Carbon, alineando la instalación con los objetivos nacionales de carbono neutralidad.

En la práctica, este enfoque demuestra que los laboratorios de alta contención pueden alcanzar un desempeño ambiental comparable al de otros edificios avanzados. Para BioLab, la sostenibilidad no es un objetivo paralelo, sino una condición operativa: garantiza que la contención, el costo y la responsabilidad ambiental permanezcan alineados a lo largo del ciclo de vida de la instalación.

 

Ciclo de Vida para un laboratorio de alta contención

Proceso participativo y gobernanza colaborativa

El desarrollo del proyecto SAG – Lo Aguirre se guió por un proceso intensivo de colaboración entre especialistas del SAG, arquitectos, ingenieros y asesores externos. Este proceso fue tan importante como los resultados técnicos alcanzados. A través de una serie de reuniones estructuradas, tanto virtuales como presenciales, el equipo estableció una comprensión compartida de los objetivos, las limitaciones y los requisitos técnicos, creando una base sólida para decisiones coherentes.

Las reuniones virtuales iniciales definieron el alcance, el marco normativo y las expectativas de desempeño del nuevo laboratorio. Aclararon cómo el proyecto se alinearía con la misión institucional del SAG, las normas nacionales y las directrices internacionales de bioseguridad. Estas sesiones construyeron un lenguaje común y fijaron parámetros claros para el diseño y la evaluación. (MEETINGS PICS)

Las reuniones presenciales y la visita al sitio tradujeron estos conceptos en observaciones concretas. Los equipos revisaron las instalaciones existentes, evaluaron las capacidades de infraestructura y servicios, y verificaron las condiciones ambientales y logísticas en terreno. Este contacto directo garantizó que el diseño posterior se basara en datos precisos y comprensión de primera mano, no en supuestos. (SITE REVIEW PICS)

Los talleres realizados durante la visita resultaron especialmente productivos. Usuarios, oficiales de seguridad y diseñadores trabajaron juntos para mapear los flujos de materiales y personal, definir requerimientos espaciales y revisar rutinas de mantenimiento y operación. Esta colaboración permitió anticipar problemas —como maniobrabilidad de equipos, acceso a autoclaves o necesidades de almacenamiento— reduciendo el riesgo de revisiones posteriores.

El proceso también cumplió una función institucional más amplia. Al participar directamente en las discusiones técnicas y en las evaluaciones de riesgo, el personal del SAG fortaleció su capacidad interna para gestionar proyectos complejos de diseño y construcción. BioLab Solutions facilitó este enfoque participativo, asegurando una transferencia de conocimiento continua durante todo el ciclo de diseño. La experiencia sentó las bases para un modelo de toma de decisiones donde la participación multidisciplinaria y la documentación transparente sean prácticas habituales.

En última instancia, el proceso de trabajo estableció un modelo de gobernanza colaborativa que refleja cómo operará el propio laboratorio: interdisciplinario, basado en evidencia y con rendición de cuentas. Demostró que el diseño efectivo de infraestructura especializada depende tanto de la comunicación y la coordinación como del conocimiento técnico. El proyecto SAG – Lo Aguirre deja así no solo un laboratorio físico, sino también un método de trabajo que muestra cómo Chile puede planificar y ejecutar instalaciones de bioseguridad complejas en el futuro.

Una plataforma para una capacidad local duradera

En conjunto, estos cinco ejes describen un proyecto nacional que une salud pública, autonomía científica y diseño sostenible. El laboratorio BSL-3 SAG – Lo Aguirre no es solo una instalación de alta contención: es una plataforma para el desarrollo institucional a largo plazo, que combina estándares técnicos rigurosos, responsabilidad ambiental y gobernanza colaborativa para fortalecer la capacidad de Chile en bioseguridad y excelencia diagnóstica.

Para BioLab Solutions, también constituye una demostración de que, cuando el análisis de riesgo, la tecnología apropiada y la visión de ciclo de vida se aplican de manera coherente, la infraestructura puede convertirse en un verdadero instrumento de capacidad —uno que perdure mucho más allá de su construcción.